인천 부평 산곡 현대아파트 인테리어
안녕하세요.
디자인 스튜디오 찬란 입니다. :)
2.5단계 거리두기로 인해서 카페 #란드 문을 열지못해서 한동안 멘탈이.......
오랜만에 포스팅 합니다.
2021년에는 매순간 행복하길 바랍니다.
이번 포스팅은
인천 부평구에 위치한
산곡 현대아파트 올수리 리모델링 현장입니다.
35년된 45평형 아파트입니다.
요즘 트렌드의 디자인을 지향하지만
구조상의 문제로 많은 어려움이 있어서
디자인 수정이 있었습니다.
부족한 부분도 많았지만,
클라이언트 분께서 마음에 들어하셔서 감사할따름입니다.

900 한샘 하이드후드 매립, 가스레인지 2구, 인덕션 3구, 대리석 상판 치마x






공간을 나누어서
- 기존 현장 사진
- 시공 내용
- 마무리 사진 순으로
정리할께요!
- 주방













기존 주방에 임방,미닫이 도어
접시장 뒷벽에는 세탁실이 있었습니다.
세탁실은 주방에 이어지는 발코니로 옮겨드렸어요.
주방에서 발코니로 가는문은 터닝도어대신 ABS도어로 시공해드렸습니다.
주방을 더욱 크게 활용하시게끔 해드렸으며,
기존 세탁실에 우수관이 있어 철거가 어려워
추후 문제가있을시에 대한 부분 떄문에
아일랜드 식탁으로 배치해 드렸어요.
기존 주방 PJ창은 픽스유리로 교체해드렸어요.
- 거실



천정 등박스 철거 후 평작업
할로겐 매입
아트월 간접 조명 연출
커튼박스 간접 조명 연출
구정 강마루 시공해드렸어요.
- 화장실












휴지걸이 매립
타일 졸리컷 시공
600각 테라조 타일 시공
힘펠 환풍기 설치
천정은 석고 덧방 후 페인트 시공 해 드렸어요.
- 각 방





책상이 들어가야해서 문짝 아래부분을 고정 시킨 후
위에만 열리게끔 시공해드렸어요.

써라운드를 없에기 위해
기존 바닥 수평몰탈 작업 후 붙박이 가구 시공해 드렸어요.

- 현관



지정 타일 시공
신발장 띄움시공 후 간접조명 작업
슬라이딩 중문 시공해 드렸어요.
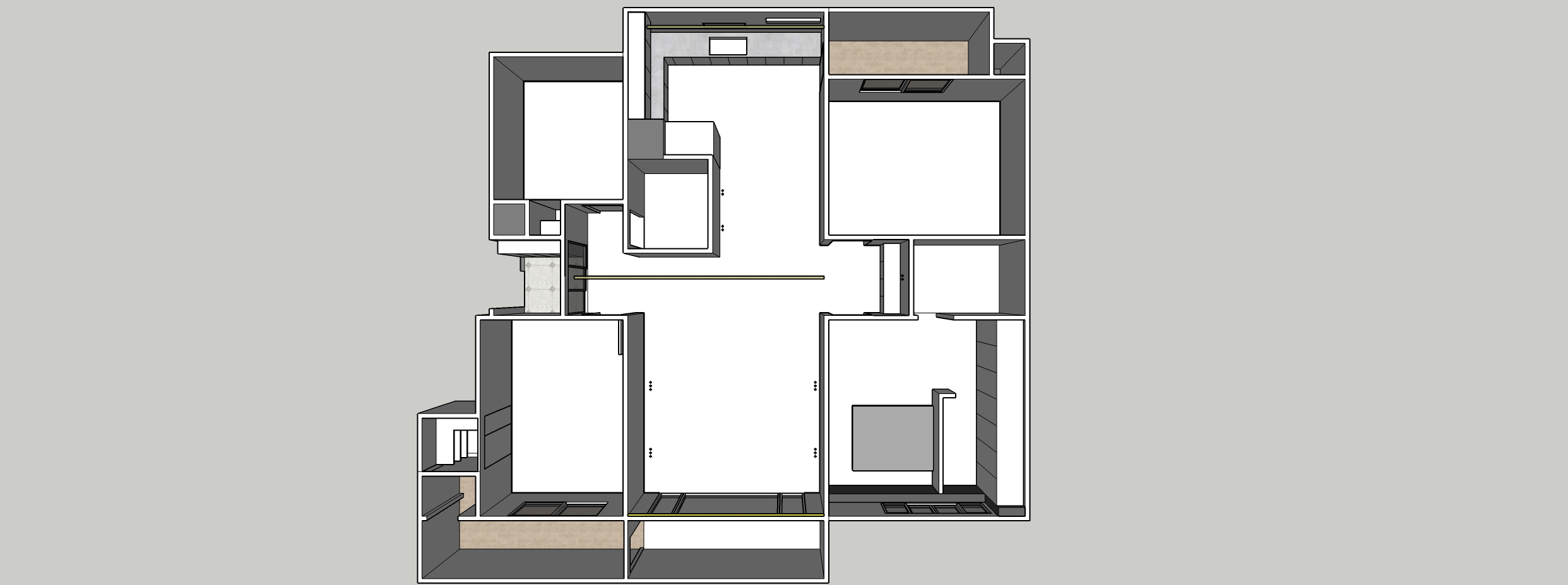
- 도면 스케치






이상으로 부평 산곡 현대아파트 포스팅을 마무리하겠습니다.
CHALLAN DESIGN STUDIO
- CHALLAN INTERIOR
- LANDE CAFE
부평동 912-5 1F,BF