안녕하세요.
디자인 스튜디오 찬란 입니다.
저희 카페브랜드 란드 인테리어 시공 과정들을 소개하고자 합니다.

지하에서 3년간 열심히 했습니다.
오래있으면 습해서 머리도 어지러웠구...........하,,,
겨울에는 너무 추워서 손가락이 얼어서 도면도 못따서....
(히터 책상위에 올려서 도면땃던거 같은....)
사무실을 엄청엄청 옮기고싶었어요.
1년정도 자리를 알아보러 다녔던거 같아요.
위치가 마음에들면 금액이 비싸고,
저희에게 맞는 공간, 확 끌리는 공간을 못만나서 계속 시간내서 찾아다녔어요.
그러다 너무 마음에 들었던 공간을 찾았습니다.
오래전부터 지나다니던 거리였어요.
전에는 테일러샵이였구요.
느낌이 너무 좋았던 곳이였고 괜찮다 생각했던 곳이 몇달정도 비어있다가
임대문의가 붙은걸 보고 바로 연락드렸습니다.

7년전? 인테리어라는데 너무 감각있고 아쉬웠던 파사드
부동산과 미팅 하기전 건축물대장을 먼저 확인했습니다.
그리고 미팅할때 물어볼것들을 하나씩 적어놨죠.
이게 이상한게 직접 하려니까 어렵더라구요..
사장님들이 여쭈어보실때는 아무렇지 않게 대답해드렸는데,
막상 제가 가게를 알아보니 긴장이되는 그런 상황
내부로 들어왔어요.
먼저,
전기용량, 수도 (급수,배수), 치수를 확인했구요.




여기는 찬란꺼다, 무조건이다, 들어와야한다,
들어와서 보니 너무 좋았어요.
일단 지르고봤어요.
바로 가계약 하고 준비했습니다.
가계약하고 예치금 넣고
본계약은 1달 뒤에 계약서 쓰기로 했죠.
이때 코로나가 많이 심해서 걱정도 되고 고민도 되었는데, 그때 아니였으면 못했을거 같아요.
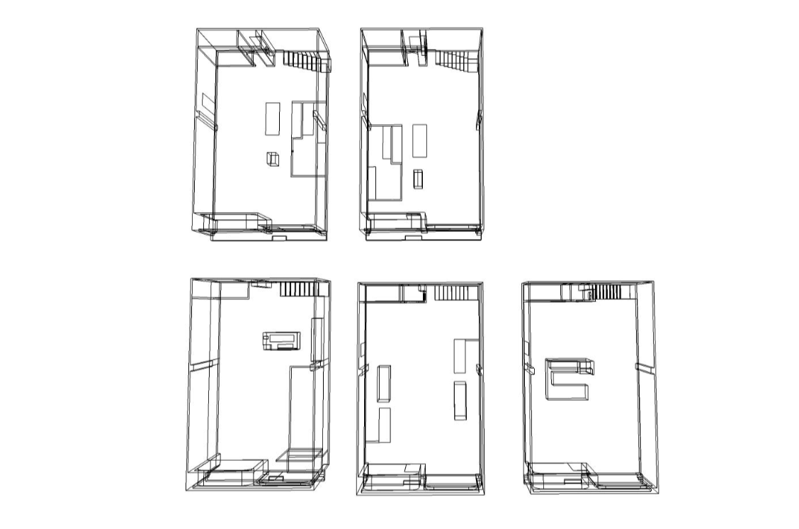
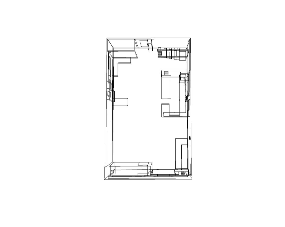
스케치

짬짬히 초안 작업 했어요.
원래는 사무실을 1층에 배치하려고 했어요.
(와 근데 지금생각하면 란드는 이렇게 까지 와주시지 않았을것같아요..)
프랜차이즈카페 처럼
주방을 안으로 빼서 테이블을 늘리고 싶진않았습니다.
기본은 미니멀리즘을 기반으로 시작했어요.
공사가 커지더라도 공간을 나누고싶었죠.
1인-2인을 위한 좌석
노트북 사용을 위한 좌석
2인-4인을 위한 좌석
단체석 공간까지
다양한 공간을 연출하고싶었어요.
공간마다 의미가 부여되야하고,
포토존도 있어야했구요.
일주일동안은 스케치만 잡았던거 같아요.

같이 일하는 동생들이 포기했습니다. (으흐흫흐흫)
카운터 동선부터 짜고 나머지들을 넣었어요.
착공

드디어 공사시작
먼저 철거, 설비, 전기, 가설공사들을 해놨었구요.
목공 공사 진행중입니다.



기존 벽에 가베, 가벽을 쳤어요.
천정은 석고 덧방치고 고가 낮아서 할로겐으로 하였구요.
카운터에서 화장실이 보였으면해서 살짝 구멍도 내어주었구요.




기본적으로 외관은 갈바로 작업하는게 맞는데
예산 비용이 넉넉하지 않아서 목공으로 작업했어요.
외관은 시멘트보드로 작업했습니다.
추후에는 파사드와 건물외벽 사이에 물이 들어가지 않게
갈바 접어서 처마 마무리도 해주었어요.
다음 포스팅은 한번더 정리해서 이어서 갈께요.
(내부 도장, 마감, 지하 공간)
'ABOUT > CHALLAN' 카테고리의 다른 글
| 인천 부평 굴포천 카페 란드 인테리어 #2 (0) | 2020.10.19 |
|---|---|
| 부평 카페 인테리어 사무실 란드 그리고 찬란 (0) | 2020.10.08 |